瀬谷区 意見広告
公開日:2015.01.15
瀬谷区にサッカーのできる広場実現へ! 熱血市政レポート
瀬谷区サッカー協会の悲願実る
横浜市会議員 花上(はなうえ)喜代志
瀬谷区にはサッカーチームがおとな12チーム、こども7チームあり、横浜F・マリノスの栗原勇蔵選手や、なでしこジャパンの上尾野辺めぐみ選手など、有名な選手を輩出しています。
しかし区内にサッカー場が無く、瀬谷区サッカー協会が悲願としてサッカー場建設を要望していました。
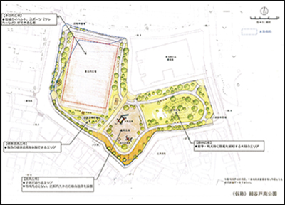
当初、横浜市では本郷公園内に、硬式野球場、テニスコートと共にサッカー場を建設する予定でしたが、アプローチ道路の問題が解決せず、昨年、サッカー場建設を断念しました。
そこで瀬谷区サッカー協会の神保愃一前会長や阿部寛現会長が中心となり、区内サッカーチームの代表全員の署名を添えて、林文子横浜市長と薬師寺えり子瀬谷区長に本郷公園に代わるサッカー場の建設を陳情することになりました。
昨年4月に協会役員の皆さんと私が、薬師寺区長と柏崎誠副市長を相次いで訪問。早期にサッカー場を建設するよう陳情しました。
横浜市では早速、環境創造局と瀬谷区が連携して検討した結果、細谷戸ハイツに隣接した細谷戸南公園(仮称)に少年用のサッカーのできる広場を建設することを決定、住民の方々への説明を行いました。
瀬谷区のサッカー関係者の皆さんとの再三の話し合いや現地調査、そして市や区との折衝を行い、このたびその悲願が実現することになり、私も心から嬉しく思っています。
花上喜代志
-
瀬谷区三ツ境174
TEL:045-363-9749
ピックアップ
意見広告・議会報告
瀬谷区 意見広告の新着記事
コラム
求人特集
外部リンク
- LINE・メール版 タウンニュース読者限定
毎月計30名様に
Amazonギフトカード
プレゼント! -

あなたの街の話題のニュースや
お得な情報などを、LINEやメールで
無料でお届けします。
通知で見逃しも防げて便利です!














