厚木・愛川・清川 社会
公開日:2023.08.11
厚木中央公園
初の大規模リニューアル
2年かけ広場など整備
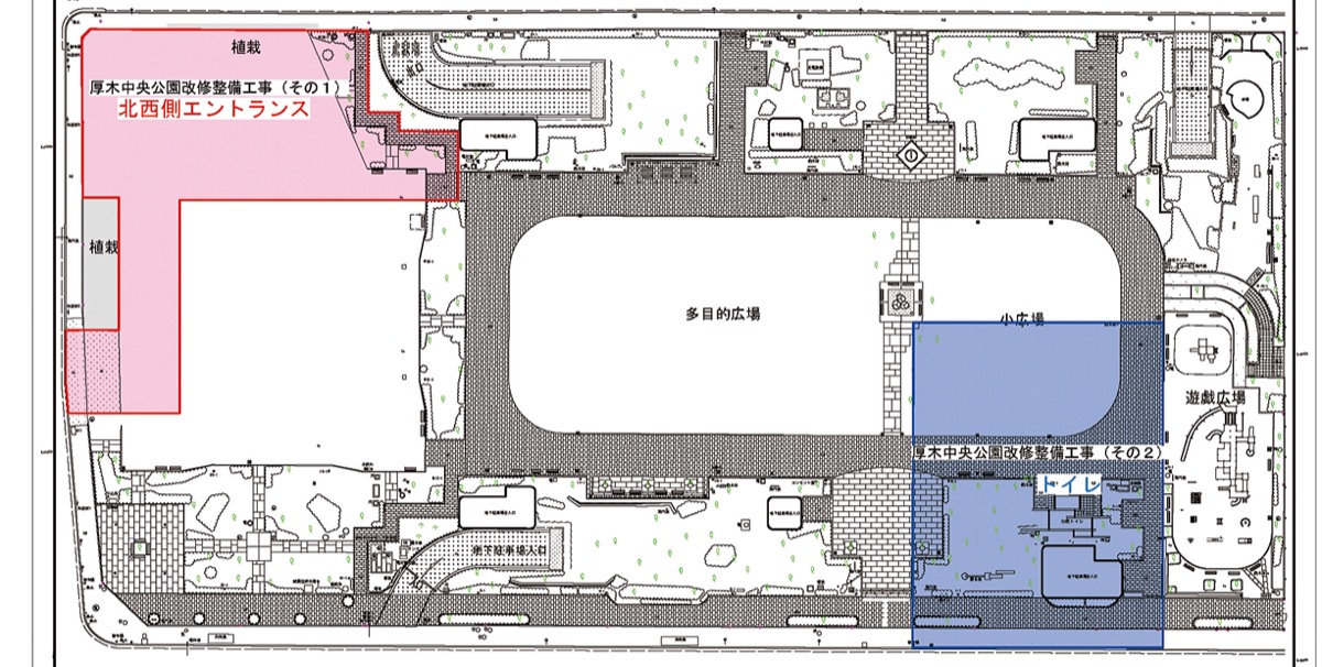
厚木中央公園が今年9月上旬から2025年にかけ、より魅力的な公園づくりを目指し、初の大規模リニューアル工事を行う。今年度はトイレと北西側エントランスを改修、来年度は現在閉鎖中の「憩いの広場」が芝生広場へ生まれ変わる。
駅徒歩圏内で立地にも恵まれ、鮎まつりなどイベント会場に活用されてきた中央公園。17年には多世代向け遊具が設置され、広く市民に親しまれている。
一方、1997年の開園から25年以上が経過。市公園緑地課によると市役所移転を含む駅周辺再整備事業でも「まち歩きのニーズを高める魅力的な公園」としての期待が高まっていた。
地域に誇れる園に
今回整備するエントランスと広場は、下水道工事に伴い19年から閉鎖されていた。閉鎖前の広場には池と噴水球があったが、老朽化から故障も多く、閉鎖解除に伴い撤去することになった。再整備にあたっては、市は市民らにアンケートを実施。多目的に活用できる芝生広場が採用された。
北西エントランスには、シンボルツリーのイロハモミジのほか、市の花のサツキやカエデなど四季折々の植物を植樹。ヤブランなど自然豊かな厚木市らしい景観で地域が誇れる園を目指す。ベンチも設置し、自由に楽しめる空間となる予定。
トイレは設備を新しくし、多目的トイレに介護ベットも設置する。
ほか、老齢化した樹木の伐採や植え替えも予定。北側にあるサクラなど、街路灯を遮ったり、他植物の生育を妨げているものなど約50本を伐採する。
工事は2カ年計画。ほか、今後、避難場所として災害対策の強化も検討されているという。
ピックアップ
意見広告・議会報告
厚木・愛川・清川 ローカルニュースの新着記事
コラム
求人特集
- LINE・メール版 タウンニュース読者限定
毎月計30名様に
Amazonギフトカード
プレゼント! -

あなたの街の話題のニュースや
お得な情報などを、LINEやメールで
無料でお届けします。
通知で見逃しも防げて便利です!











